產品目錄
91看片儿免费看
液體流量計
91看片视频免费
油流量計
91看片网站下载
橢圓齒輪流量計
電磁流量計
渦街流量計
蒸汽流量計
孔板流量計
旋進旋渦流量計
熱式氣體質量流量計
轉子流量計
浮子流量計
靶式流量計
氣體流量計
超聲波流量計
磁翻板液位計
浮子液位計
浮球液位計
玻璃管液位計
雷達液位計
超聲波液位計
投入式液位計
壓力變送器
差壓變送器
液位變送器
溫度變送器
熱電偶
熱電阻
雙金屬溫度計
推薦產品
聯係91看片下载免费观看
- 金湖91看片下载免费观看儀表有限公司
- 聯係電話:15195518515
- 在線客服:1464856260
- 電話:0517-86801009
- 傳真號碼:0517-86801007
- 郵箱:1464856260@qq.com
- 網址:http://www.zhongtaijixie.net
- 地址:江蘇省金湖縣理士大道61號
金屬管轉子流量計的安裝要求
發布時間:2024-01-05 09:06:37 點擊次數:1210次
金屬管轉子流量計是工業自動化過程控製中常用的一種麵積流量測量儀表。它具有體積小,檢測範圍大,使用方便等特點。它可用來測量液體、氣體以及蒸汽的流量,特別適宜低流速小流量的介質流量測量。
金屬管轉子流量計主要有三大部分組成:1.測量管體;2.錐形浮子;3.指示器。浮子的位移量與流量大小成正比,通過磁耦合係統,以不接觸方式,將浮子位移量傳給指示器指出流量大小。也可配合不同的轉換器,將流量值轉換成標準的電遠傳信號如4-20mA。實現距離遠傳顯示、記錄、積算和控製等功能。
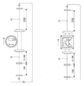
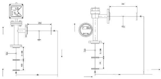
1、直管段要求:前100mm+5D(D為管道內徑),後250mm
2、流量計安裝時要保證測量管的垂直度優於5%,且應加裝旁路
3、介質中含有鐵磁性物質,應在流量計前安裝磁過濾器
4、控製閥,應安裝在流量計的下遊
5、安裝流量計前,應進行管道內焊渣吹掃
6、安裝時,取出流量計中的止動元件
7、使用時,要緩慢開啟控製閥門,避免衝擊損壞流量計
8、安裝方法:
1)下進上出安裝圖

2)下進上橫出安裝圖

3)下橫進上橫出安裝圖

4)左進右出安裝圖

上一篇:金屬管轉子流量計的使用特點下一篇:靶式流量計安裝方式有哪些

